招租公告-k8体育

k8体育

招租公告

时间 2024-03-25 16:26:54

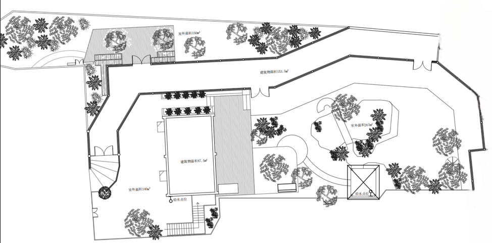
我单位现有青羊区清江东路360号峨影园区内20-1录音车间前连廊部分物业拟对外出租,业态为文化企业办公、文化类k8凯发官方网站的产品展示,租赁期限3年,此物业出租采取不低于评估价:即建筑物面积201㎡,27元/㎡/月,户外面积555㎡,17元/㎡/月,共计14862元/月的价格作为竞标底价,价高者得租。

有意承租者请于2024年3月28日前携带相关证据(自然人/个体工商户携带身份证;法人携带加盖公章的营业执照复印件、经办人员介绍信及法定代表人授权委托书),到成都市青羊区清江东路360号成都峨影文旅发展有限责任公司招商管理部进行报名申请,报名截止日期为2023年3月27日。

招租物业平面图:

1.png 

 

联系电话:18200199616      

 联系人:武先生



                                        成都峨影文旅发展有限责任公司

                                                 2024年3月25日


太平洋影城公众号
峨影频道公众号
87333890
邮编: 610072
传真: 87319361
地址: 成都市青羊区清江东路360号
网站地图